- Predaj nehnuteľností
- 4-izbový byt
- CHORVÁTSKO - 4-izbové apartmány v blízkosti peknej pláže - SUKOŠAN
CHORVÁTSKO - 4-izbové apartmány v blízkosti peknej pláže - SUKOŠAN
Zobraziť fotogalériu (14 fotografií)
RB26-2659-50,
Realitná kancelária AMAXADES REALITY sprostredkováva predaj pekných nových apartmánov s výbornou polohou v blízkosti novo zrekonštruovanej pláže v mestečku SUKOŠAN.
Na predaj je celkovo 10 apartmánov umiestnených v dvoch identických stavbách. V každom dome sa nachádzajú štyri 3-izbové apartmány a jeden 4-izbový apartmán (S5) so strešnou terasou. Prvý dom je vzdialený 70 m od mora a druhý 100 m od mora.
Ku každému apartmánu patrí jedno parkovacie miesto. Apartmány so strešnou terasou majú dve parkovacie miesta. Takmer zo všetkých apartmánov je výhľad na more.
Apartmány sa stavajú s dôrazom na kvalitu použitých materiálov s moderným dizajnom. Apartmány majú podlahové vykurovanie a sú vhodné na celoročné bývanie aj na turistický prenájom.
Apartmán S1 – prízemie. Výmera 61,06 m2 + terasa 12,30 m2 + záhrada 48 m2.
Apartmán má vstupnú chodbu, dve spálne, kúpeľňu so sprchovacím kútom a WC, druhé samostatné WC / práčovňu a obývačku s kuchynským kútom a jedálňou s prístupom na terasu.
Apartmán S2 – prízemie. Výmera 64,22 m2 + terasa 12,80 m2 + záhrada 74 m2.
Apartmán má vstupnú chodbu, dve spálne, kúpeľňu so sprchovacím kútom a WC, práčovňu / technickú miestnosť a obývačku s kuchynským kútom a jedálňou s prístupom na terasu.
Apartmán S3 – 1.poschodie. Výmera 61,06 m2 + terasa 10,1 m2.
Apartmán má vstupnú chodbu, dve spálne, kúpeľňu so sprchovacím kútom a WC, druhé samostatné WC / práčovňu a obývačku s kuchynským kútom a jedálňou s prístupom na terasu.
Apartmán S4 – 1.poschodie. Výmera 64,22 m2 + terasa 12,80 m2.
Apartmán má vstupnú chodbu, dve spálne, kúpeľňu so sprchovacím kútom a WC, práčovňu / technickú miestnosť a obývačku s kuchynským kútom a jedálňou s prístupom na terasu.
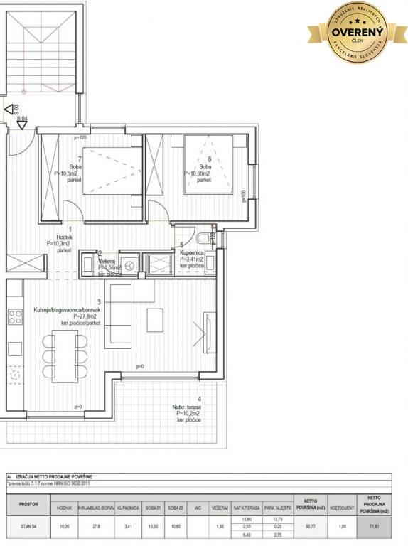
Apartmán S5 – 2.poschodie. Tento apartmán je 4-izbový. Jeho výmera je 105,71 m2 + terasa prístupná z obývačky 25,43 m2 + druhá terasa prístupná z dvoch spálni 14,67 m2 + strešná terasa s bazénom 105,95 m2.
Apartmán má vstupnú chodbu, tri spálne, dve kúpeľne, pričom jedna z nich je súčasťou jednej spálne a obývačku s kuchynským kútom a jedálňou.
Inžinierske siete: voda, elektrina, biočistička
Predajné ceny:
Apartmán S1 = 364.000,- EUR
Apartmán S2 = 368.000,- EUR
Apartmán S3 = 315.000,- EUR
Apartmán S4 = 324.000,- EUR
Apartmán S5 = 792.000,- EUR
+ kupujúci platí realitný a právny servis zahŕňajúci právne dokumenty, prekladateľské služby a notárske poplatky vo výške 3% z kúpnej ceny.
Viac nehnuteľností na predaj v Chorvátsku nájdete na našej webovej stránke.
V prípade záujmu o obhliadku nehnuteľnosti nás kontaktujte:
+421.911.201.211, +385.99.8431.210,
amaxades.reality@gmail.com
Podrobné informácie
2/posledné poschodie
2
4
251.76 m²
105.71 m²
osobné
aktívne
áno - separovaný
áno
vlastné - elektrické
146 m²
vlastné vyhradené
tehla
áno
exteriérový
áno
nie
plastové
- 13. január 2026 19:55 hod
- poslať správu
- poslať ponuku na e-mail
- dohodnúť prehliadku objektu
- vytlačiť ponuku
Poloha nehnuteľnosti na mape
Pre viac informácií kontaktujte
AMAXADES REALITY


Telefón: +421 911 201 211
E-mail: amaxades.reality@gmail.com
AMAXADES s.r.o.
Pivovarská 7
NITRA, SLOVAKIA,
SK-94901
Telefón: +421 911 201 211, +421.911.400.211
Mobil: +421 911 201 211, +421.911.400.211, +385.99.8431.210,
E-mail: amaxades.reality@gmail.com
Web: www.amaxades-reality.sk



















