- Predaj nehnuteľností
- 2-izbový byt
- PREDAJ - 2-izbový byt s výhľadom na Zobor. Projekt RIVIERA - NITRA
PREDAJ - 2-izbový byt s výhľadom na Zobor. Projekt RIVIERA - NITRA
Zobraziť fotogalériu (19 fotografií)
Realitná kancelária AMAXADES REALITY ponúka na predaj 2-izbový byt v Nitre, ktorý sa nachádza v bytovom komplexe RIVIERA na Pieskovej ulici.
Nový bytový komplex sa nachádza priamo pri cyklotrase lemujúcej rieku Nitru a v tesnej blízkosti mestského parku. Byt je orientovaný na východnú stranu a je z neho pekný výhľad na rieku Nitra, vrch Zobor a pohorie Tribeč. Tento bytový komplex ponúka pre obyvateľov aj dodatočné služby, ako je detské ihrisko, príjemná kaviareň a kaderníctvo.
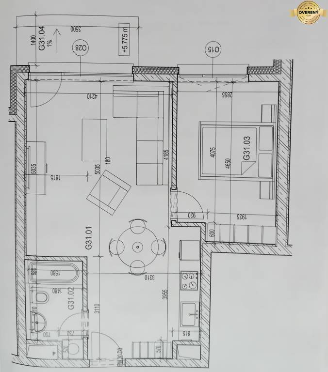
Byt sa nachádza na 3. poschodí. Jeho výmera je 48,52 m2 + balkón s výmerou ca. 5 m2. K bytu patrí vlastné parkovacie miesto v garáži bytového domu a pivničná kobka s výmerou 2,5 m2.
Byt má dve obytné miestnosti. Priestrannú obývačku s kuchynským kútom, samostatnú spálňu a kúpeľňu s vaňou. Z obývačky je prístup na balkón.
V byte je podlahové vykurovanie.
Byt sa predáva so zariadením ako na fotografiách. Byt je vhodný ako investícia s možnosťou okamžitého prenájmu!
Mesačné náklady na správu bytu sú 130 EUR mesačne + reálna spotreba elektriny, internet a televízia.
Predajná cena nehnuteľnosti je 195.000 EUR.
Dohoda možná.
V prípade záujmu o obhliadku nás kontaktujte:
0911 201 211,
amaxades.reality@gmail.com
Podrobné informácie
3/vyššie poschodie
6
2
56 m²
51 m²
osobné
úplne prerobený
aktívne
áno - separovaný
optika
áno
spoločné – vlastná kotolňa
5 m²
2.52 m²
áno - 1 auto
áno
vlastné vyhradené
Zmiešané
zariadený
áno
nie
áno
áno
áno
plastové
+421 911 201 211
Slovensko
Nitra
Nitra
Piesková
osobné
2-izbový byt - novostavba
predaj
- 26. január 2026 17:46 hod
- poslať správu
- poslať ponuku na e-mail
- dohodnúť prehliadku objektu
- vytlačiť ponuku
Poloha nehnuteľnosti na mape
Pre viac informácií kontaktujte
AMAXADES REALITY


Telefón: +421 911 201 211
E-mail: amaxades.reality@gmail.com
AMAXADES s.r.o.
Pivovarská 7
NITRA, SLOVAKIA,
SK-94901
Telefón: +421 911 201 211, +421.911.400.211
Mobil: +421 911 201 211, +421.911.400.211, +385.99.8431.210,
E-mail: amaxades.reality@gmail.com
Web: www.amaxades-reality.sk
























