- Predaj nehnuteľností
- 3-izbový byt
- CHORVÁTSKO - Apartmány v krásnej dedinke TRIBUNJ
CHORVÁTSKO - Apartmány v krásnej dedinke TRIBUNJ
Zobraziť fotogalériu (5 fotografií)
AX251157,
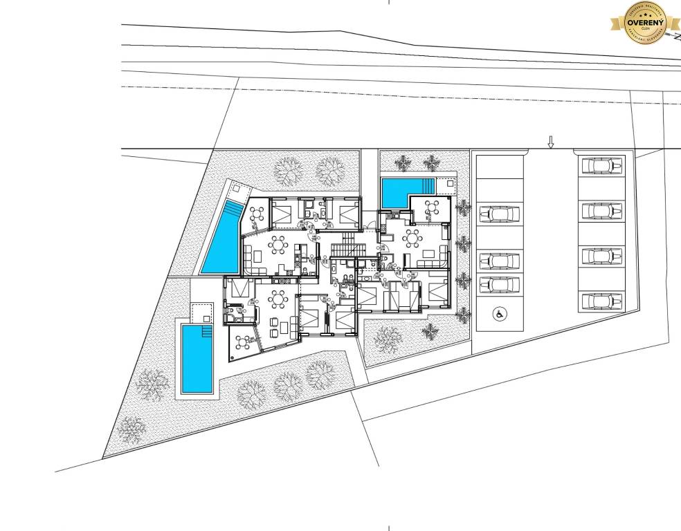
Realitná kancelária AMAXADES REALITY ponúka na predaj nové apartmány v obľúbenej rybárskej dedinke TRIBUNJ s krásnymi zátokami, krištáľovo čistým morom a romantickým historickým centrom. Apartmánový dom je vo výstavbe a nachádza sa 650 m od mora.
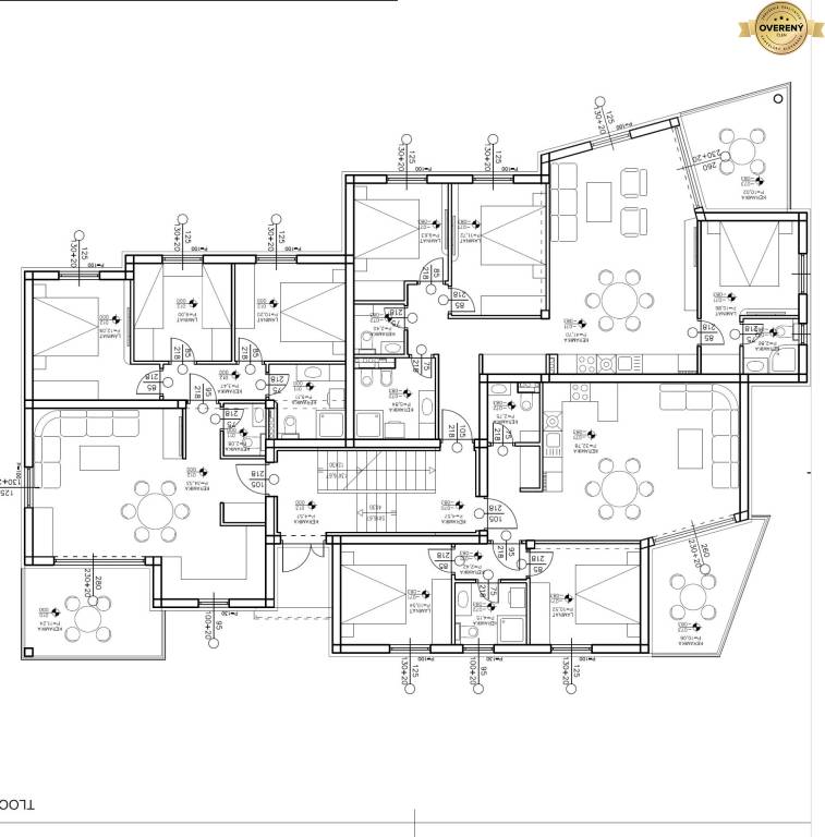
V dome bude 9 apartmánov na troch podlažiach. Na každom podlaží sú tri apartmány. Apartmány na prízemí majú záhradku a bazén. V suteréne sa nachádzajú pivnice. Ku každému apartmánu patrí jedno parkovacie miesto.
PRÍZEMIE:
PR1 – 4-izbový apartmán má vstupný priestor, tri spálne, kúpeľňu, samostatné WC / technickú miestnosť a obývačku s kuchynským kútom s prístupom na terasu a do záhrady s bazénom. Výmera apartmánu je 76,28 m2 + terasa 11,24 m2 + záhrada a bazén.
Predajná cena apartmánu PR1 = 398.008,- EUR
PR2 – 3-izbový apartmán má vstupný priestor, dve spálne, kúpeľňu, samostatné WC / technickú miestnosť a obývačku s kuchynským kútom s prístupom na terasu a do záhrady s bazénom. Výmera apartmánu je 63,16 m2 + terasa 10,06 m2 + záhrada a bazén.
Predajná cena apartmánu PR2 = 338.410,- EUR
PR3 – 4-izbový apartmán má vstupný priestor, chodbu, tri spálne, dve kúpeľne, samostatné WC / technickú miestnosť a obývačku s kuchynským kútom s prístupom na terasu a do záhrady s bazénom. Výmera apartmánu je 85 m2 + terasa 10 m2 + záhrada a bazén.
Predajná cena apartmánu PR3 = 432.193,- EUR
1. POSCHODIE
1K1 – 4-izbový apartmán má vstupný priestor, tri spálne, kúpeľňu, samostatné WC / technickú miestnosť a obývačku s kuchynským kútom s prístupom na terasu. Výmera apartmánu je 76,28 m2 + terasa 11,24 m2.
Predajná cena apartmánu 1K1 = 388.752,- EUR
1K2 – 3-izbový apartmán má vstupný priestor, dve spálne, kúpeľňu, samostatné WC / technickú miestnosť a obývačku s kuchynským kútom s prístupom na terasu. Výmera apartmánu je 63,16 m2 + terasa 10,06 m2.
Predajná cena apartmánu 1K2 = 330.540,- EUR
1K3 – 4-izbový apartmán má vstupný priestor, chodbu, tri spálne, dve kúpeľne, samostatné WC / technickú miestnosť a obývačku s kuchynským kútom s prístupom na terasu. Výmera apartmánu je 85 m2 + terasa 10 m2.
Predajná cena apartmánu 1K3 = 422.142,- EUR
2. POSCHODIE
2K1 – 4-izbový apartmán má vstupný priestor, tri spálne, kúpeľňu, samostatné WC / technickú miestnosť a obývačku s kuchynským kútom s prístupom na terasu. Výmera apartmánu je 76,28 m2 + terasa 11,24 m2.
Predajná cena apartmánu 2K1 = 398.008,- EUR
2K2 – 3-izbový apartmán má vstupný priestor, dve spálne, kúpeľňu, samostatné WC / technickú miestnosť a obývačku s kuchynským kútom s prístupom na terasu. Výmera apartmánu je 63,16 m2 + terasa 10,06 m2.
Predajná cena apartmánu 2K2 = 338.410,- EUR
2K3 – 4-izbový apartmán má vstupný priestor, chodbu, tri spálne, dve kúpeľne, samostatné WC / technickú miestnosť a obývačku s kuchynským kútom s prístupom na terasu. Výmera apartmánu je 85 m2 + terasa 10 m2.
Predajná cena apartmánu 2K3 = 432.193,- EUR
Predajné ceny sú s DPH. Kupujúci pri kúpe tejto nehnuteľnosti neplatí daň z prevodu nehnuteľnosti.
Inžinierske siete: obecná voda, elektrina, kanalizácia
Viac nehnuteľností na predaj v Chorvátsku nájdete na našej webovej stránke.
V prípade záujmu o obhliadku alebo ďalšie informácie nás kontaktujte:
+421.911.201.211, +385.99.8431.210,
amaxades.reality@gmail.com
Podrobné informácie
1/vyššie poschodie
2
3
73.22 m²
63.16 m²
firemné
pôvodný
aktívne
áno
áno
vlastné - elektrické
10.06 m²
áno
vlastné vyhradené
tehla
áno
áno
nie
- 11. november 2025 19:16 hod
- poslať správu
- poslať ponuku na e-mail
- dohodnúť prehliadku objektu
- vytlačiť ponuku
Poloha nehnuteľnosti na mape
Pre viac informácií kontaktujte
AMAXADES REALITY


Telefón: +421 911 201 211
E-mail: amaxades.reality@gmail.com
AMAXADES s.r.o.
Pivovarská 7
NITRA, SLOVAKIA,
SK-94901
Telefón: +421 911 201 211, +421.911.400.211
Mobil: +421 911 201 211, +421.911.400.211, +385.99.8431.210,
E-mail: amaxades.reality@gmail.com
Web: www.amaxades-reality.sk










